Používáme cookies k optimalizaci našich webových stránek a našich služeb. Další informace o cookies najdete zde.

Nastavení


Nájem hezkého bytu 2+kk v Opavě Kateřinkách

Nájem hezkého bytu 2+kk v Opavě Kateřinkách

Príma bydlení kousek od centra

Popis nemovitosti

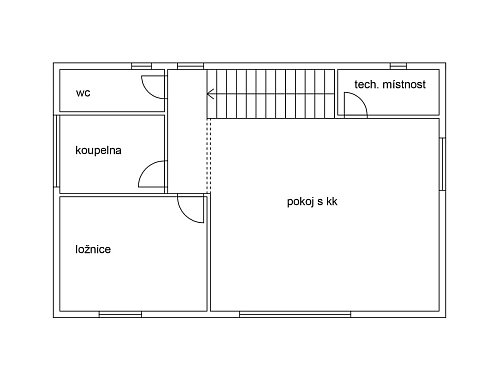
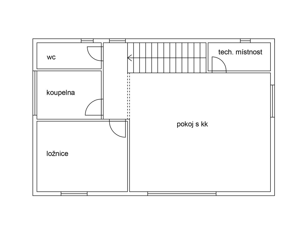
Nabízíme pronájem pěkného bytu v rodinném domě v poblíž ulice Pekařské s dispozicí 2+kk v prvním patře výměře 65 m². Byt v osobním vlastnictví je ve velmi dobrém stavu. Je v něm prostorný a slunečný obývací pokoj s kuchyňským koutem, ložnice s vestavěnými skříněmi, koupelna se sprchovým koutem, WC a technická místnost. K dispozici je parkovací stání! Vytápění vlastním kondenzačním plynovým kotlem. Dům je zateplen, okna jsou plastová, v obývacím pokoji je velké francouzské okno.

Výše měsíčního nájmu je 16.500 Kč + zálohy na služby (6.000,- Kč pro 2 osoby). Kauce je ve výši dvou nájmů, tedy 33.000,- Kč. Prohlídka bytu je možná po předchozí domluvě.

Petr Vícha

Prací realitního makléře jsem se začal zabývat na konci roku 1991. Realitní kancelář, kde jsem jednatelem, ATRIM, spol. s r.o., pak vznikla na začátku roku 1993. Mohu tedy s klidným svědomím prohlásit, že za těch více než 30 let už nějaké zkušenosti mám.

V realitní branži mě to skutečně baví a snažím se poskytovat své služby na vysoké úrovni. Vše s jasným cílem. Prodat vaši nemovitost za co nejvyšší cenu k vaší plné spokojenosti. 


Petr Vícha

Kontaktní formulář

Stáhnout PDF